Szent János tér 34–36

Liftes épület • 33–100 m² • Penthouse lehetőség

A Makó Napfény Rezidencia Szent János téri épülete modern, liftes társasház,
átgondolt lakáselrendezésekkel. A kompakt garzonoktól a tágas családi
lakásokig minden élethelyzetre kínál megfelelő otthont, loggiával vagy
tetőterasszal.

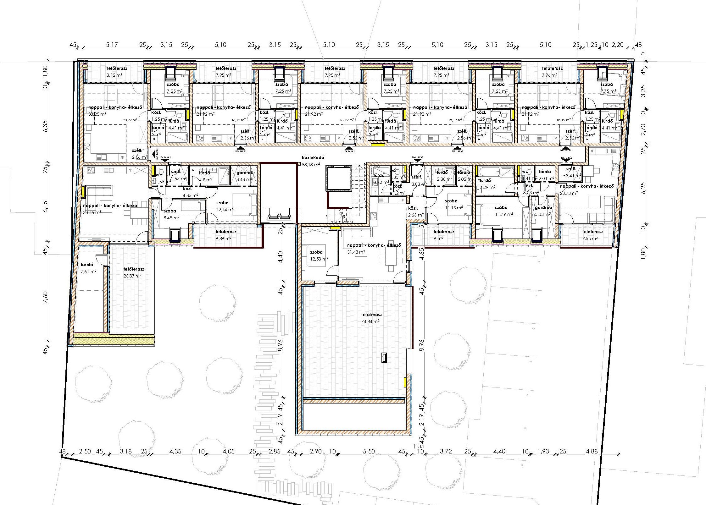
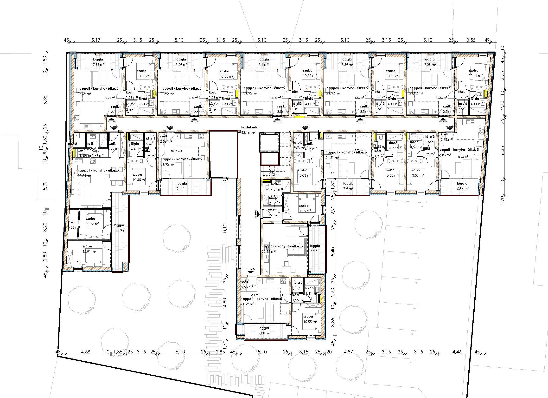
Épület alaprajzai

Kattintson az alaprajzra a nagyításhoz.

Makó Napfény Rezidencia Szent János tér földszinti alaprajz
Makó Napfény Rezidencia Szent János tér Első emeleti alaprajz
Makó Napfény Rezidencia Szent János tér I tetőtéri alaprajz
Makó Napfény Rezidencia Szent János tér II. emeleti alaprajz

Érdekli a Szent János téri épület?

Kérje el az aktuálisan elérhető lakások listáját,
alaprajzokkal és részletes műszaki tartalommal.